Type 320-3

Sanitair unit

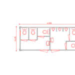
Gescheiden sanitair

Deze sanitair unit is voorzien van een gescheiden indeling met twee aparte ingangen. Hierdoor kunnen meerdere gebruikers tegelijk gebruikmaken van de voorzieningen. De unit is praktisch ingericht en geschikt voor situaties waarin capaciteit en doorstroming belangrijk zijn.

Gescheiden in twee delen met eigen toegangVoorzien van meerdere toiletten en urinoirsPraktisch en hygiënisch ingerichtSnel te plaatsen en direct inzetbaar
Vraag offerte aan
Ontvang binnen 2 werkdagen een offerte
Algemene gegevens
Afmetingen:6.00 x 2.40 x 2.60 m
Oppervlakte:14.40 m2
Gewicht:2500KG
Kleur:Grijs met rode boei en deuren
Afwerking
Binnenzijde:Stalen beplating
Buitenzijde:Geprofileerde stalenbeplating
Isolatie:PU
Vloer:SURESTEP vloerafwerking
Verlichting:TL-verlichting
Verwarming:Elektrische verwarming
Aansluiting
Elektra:32A
Afvoer:110 mm PVC
Overige opmerkingen

{acf_other_comments_content}

Laten plaatsen

Wij verzorgen het transport en de plaatsing van de units op locatie.
Samen met u stemmen we de planning af, zodat levering en plaatsing aansluiten op uw situatie. De transportkosten zijn afhankelijk van de locatie, bereikbaarheid en het type unit. Wij geven hier vooraf duidelijk inzicht in.

Zelf plaatsen

In sommige gevallen is het mogelijk om de unit zelf te plaatsen, afhankelijk van de situatie en het type unit. Wij adviseren u hier graag over.
Heeft u specifieke wensen of vragen over de planning of plaatsing? Wij denken graag met u mee.

Veelgestelde vragen

In veel gevallen dient u een tijdelijke omgevingsvergunning aan te vragen voor het tijdelijk plaatsen van een unit.

De huur van een unit kan telefonisch of per mail opgezegd worden.
Er wordt een opzegtermijn van minimaal 2 weken gehanteerd.

Het transport van een unit kan door Klein Units verzorgd worden. De unit wordt dan getransporteerd met een vrachtauto met kraan.
Echter bent u ook vrij om zelf het transport te regelen en de unit bij ons af te laten halen.

De levertijd van een unit verschilt per situatie.
Mits de unit voorradig en beschikbaar is, streven wij ernaar om de unit binnen 5 werkdagen te kunnen leveren op locatie [m.u.v. woonunits en schakelunits].

U kunt op verschillende manieren een offerte aanvragen, namelijk:

  • per telefoon
  • per mail
  • per contactformulier [per specifiek product of algemeen]
Alle veelgestelde vragen

Vraag een vrijblijvende offerte aan

HUREN

Deze unit bieden wij aan voor verhuur. Uiteraard zorgen wij ervoor dat deze aansluit bij uw wensen en gaan wij voor een snelle en complete service. De units zijn efficiënt ingedeeld met toiletten, urinoirs, wastafels, douches en boilers. We zorgen ervoor dat de unit compleet en veilig op locatie wordt afgeleverd. Is er tijdens het gebruik een storing, dan lossen wij dat snel voor u op. Is de unit niet langer nodig, dan halen we deze weer op.

KOPEN

Deze unit is ook te koop. Waar wij ons bij huur vasthouden aan een standaard assortiment, zijn er bij verkoop meer mogelijkheden. Zo kunt u zelf de indeling bepalen, zijn er diverse opties qua sanitair en ook energiebesparende opties behoren tot de mogelijkheden. De afmetingen zijn standaard (van 10ft tot 30ft) en de breedtemaat van 2,44 meter ligt vast. De unit kan in meerdere standaard kleuren geleverd worden of desgewenst zelfs in uw bedrijfskleur! Neem contact op voor de mogelijkheden.