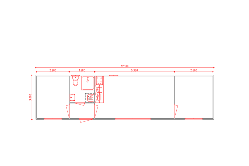
Woonunit
Zelfstandige woonruimteDeze compacte woonunit bestaat uit één unit met meerdere ruimtes en biedt een praktische oplossing voor tijdelijk verblijf. De unit is ingericht met afzonderlijke kamers, een keuken en sanitair, waardoor een zelfstandige woonruimte ontstaat.
{acf_other_comments_content}
Laten plaatsen
Wij verzorgen het transport en de plaatsing van de units op locatie.
Samen met u stemmen we de planning af, zodat levering en plaatsing aansluiten op uw situatie. De transportkosten zijn afhankelijk van de locatie, bereikbaarheid en het type unit. Wij geven hier vooraf duidelijk inzicht in.
Zelf plaatsen
In sommige gevallen is het mogelijk om de unit zelf te plaatsen, afhankelijk van de situatie en het type unit. Wij adviseren u hier graag over.
Heeft u specifieke wensen of vragen over de planning of plaatsing? Wij denken graag met u mee.
Veelgestelde vragen
Welke vergunning moet ik aanvragen voor het tijdelijk plaatsen van een unit?
In veel gevallen dient u een tijdelijke omgevingsvergunning aan te vragen voor het tijdelijk plaatsen van een unit.
Ik heb een unit gehuurd maar heb deze niet meer nodig. Hoe zeg ik de huur op? En met welke opzegtermijn moet ik rekening houden?
De huur van een unit kan telefonisch of per mail opgezegd worden.
Er wordt een opzegtermijn van minimaal 2 weken gehanteerd.
Hoe gaat het transport van een unit in zijn werk?
Het transport van een unit kan door Klein Units verzorgd worden. De unit wordt dan getransporteerd met een vrachtauto met kraan.
Echter bent u ook vrij om zelf het transport te regelen en de unit bij ons af te laten halen.
Wat is de levertijd van een unit?
De levertijd van een unit verschilt per situatie.
Mits de unit voorradig en beschikbaar is, streven wij ernaar om de unit binnen 5 werkdagen te kunnen leveren op locatie [m.u.v. woonunits en schakelunits].
Hoe vraag ik een offerte aan?
U kunt op verschillende manieren een offerte aanvragen, namelijk:
- per telefoon
- per mail
- per contactformulier [per specifiek product of algemeen]























